Villa 142
Location: Hasht Behesht, Gilavand, Tehran
Client: Bonda Co.
Material: concrete & wood
Completion date: 2015
Built area: 407m2
Architect: SaeedMohsen Younesi
Design Team: Kamand Asaadi, Arezou Memar, Saeid Jamshidi Ghamsari
Executive Team: Shahrokh Maghsood, Farshid Shomeil, Mostafa Zaafari, Hamid Zakeri
Structure Designer: Kouros Etaati
Mechanical Installations: Mehdi Mirhabibi
Electrical Installations: Hashem Mousavi
Photographer: Haamoun Moghaddam
Story:
Designing in nowhere!
When designing of the first plot of "Hasht behesht" village was given to "Textarchitect design office", there was nothing but a desert without any water trees or even streets.
The clients aim of forming this site was creating a village of villas including paving stone streets, extensive public spaces including tree planting sidewalks and facilities like club sport complex and shops for residence in a gated community and of course with emphasis on modern style and the world contemporary architecture language.Villa-142 was the first sample of this 100 villages.
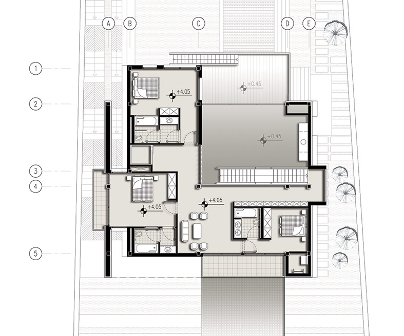
Client wishes: the modern style and form of architecture leisure facilities including 3 master bedrooms, parking, lift, SPA, outdoor fireplace and BBQ in almost 400 sqm area.
Design context:
The main view of the site is toward Damavand Mountain (the highest in Iran) and according to the height and placement of the land and the absence of northern neighbor the main emphasis was placed on the sight of Damavand. The result was a vast glass view of the villa to Damavand plain and mountain was formed. On the other hand in the southern view in opposite we have the glass wall of roofed parking assumingly leaving beautiful cars inside are considered in a way part of interior design and transparent framework.
Distinct feeling countryside life style:
We try to distance ourselves from the repeated mistake in building villas in Iran’s market. Urban residents (especially Tehranies in this project) after leaving hustle and bustle and also air and mind pollution in Tehran, they seek refuge in their villas in the countryside around Tehran.While inside these villas they have nothing more than what they have at their apartments in Tehran. One important part of this unpleasant incident, is because of Space dimensions and crust materials. Height of hall, vast transparent frames and different materials (in harmony with sight, view, environment and culture), gives the experience of different life style to the villas residents. In fact, where in our villas we do not have different feeling from our apartments, we have done nothing special in designing and constructing a new building as a villa. The usage of exposed concert in interior and exterior architecture, wood and big glass cups all help in forming this distinct feeling.
Executive details – new spaces:
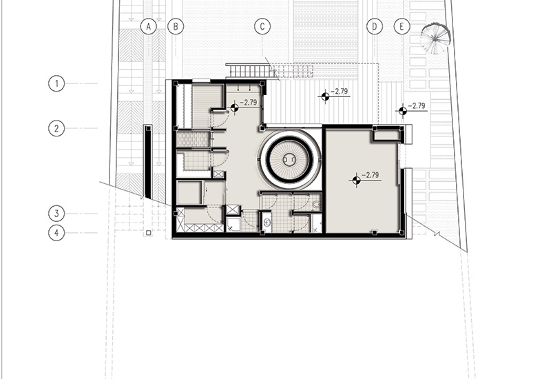
In constructing Villa-142 specific and complicated details are used in its simplicity. It includes making glass cube side which two double shell glasses reach together. Also the light on façade between wooden boards which are specifically designed and made. While going up the one direction stairs, when we reach to the end of stairs we exit the building. Entry and exit to the glass cube momentarily take you out of closed eastern walls to the infinite space and brings you back again.
SPA:
In SPA section including sauna and Jacuzzi and the place has a view to the yard.
Villa-142 was designed and built with the assumption of forming a village including aforementioned facilities and style of making villas according to the latest world’s architecture style. But the goal of client which was constructing public spaces and at least 10 villas and managing construction if the sold lands was forgotten. The biggest challenge of designing Villa-142 was designing in an environment which never exists and it was planned to be born. How economy and land market change the destiny of such projects is a long story which must be discussed in another time.